All Projects   |   Project Arthagading

Project Arthagading (13 Photos)

Published: 22 August 2019

Description

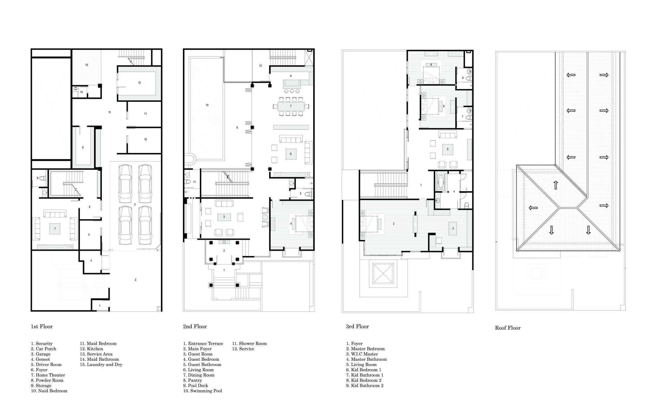
Proyek rumah tinggal dibilangan kelapa gading, Jakarta. Berada pada tapak dengan dimensi 15m x 30m di dalam kompleks hunian yang sudah terkelola sangat baik. Fasade bangunan menampilkan kesan modern dan lux. Terdiri dari 3 lantai bangunan yang seacara garis besar pembangaian zoningnya sbeagai berikut; lantai 1 area service, Lantai 2 area publik dan semi publik dan laantai 3 area private.

Project Status: Terbangun

Project Year: 2017

Project Cost(IDR): Lebih dari IDR 6 miliar

Lokasi: Kec. Klp. Gading, Kota Jkt Utara, Daerah Khusus Ibukota Jakarta, Indonesia

Yoga Irawan Project Arthagading Kec. Klp. Gading, Kota Jkt Utara, Daerah Khusus Ibukota Jakarta, Indonesia Kec. Klp. Gading, Kota Jkt Utara, Daerah Khusus Ibukota Jakarta, Indonesia Tampak Depan Modern 76945
Yoga Irawan Project Arthagading Kec. Klp. Gading, Kota Jkt Utara, Daerah Khusus Ibukota Jakarta, Indonesia Kec. Klp. Gading, Kota Jkt Utara, Daerah Khusus Ibukota Jakarta, Indonesia Detail Pintu Utama  76947
Yoga Irawan Project Arthagading Kec. Klp. Gading, Kota Jkt Utara, Daerah Khusus Ibukota Jakarta, Indonesia Kec. Klp. Gading, Kota Jkt Utara, Daerah Khusus Ibukota Jakarta, Indonesia Detail Tampak Depan  76948
Yoga Irawan Project Arthagading Kec. Klp. Gading, Kota Jkt Utara, Daerah Khusus Ibukota Jakarta, Indonesia Kec. Klp. Gading, Kota Jkt Utara, Daerah Khusus Ibukota Jakarta, Indonesia Interior  76949
Yoga Irawan Project Arthagading Kec. Klp. Gading, Kota Jkt Utara, Daerah Khusus Ibukota Jakarta, Indonesia Kec. Klp. Gading, Kota Jkt Utara, Daerah Khusus Ibukota Jakarta, Indonesia Interior  76950
Yoga Irawan Project Arthagading Kec. Klp. Gading, Kota Jkt Utara, Daerah Khusus Ibukota Jakarta, Indonesia Kec. Klp. Gading, Kota Jkt Utara, Daerah Khusus Ibukota Jakarta, Indonesia Interior  76951
Yoga Irawan Project Arthagading Kec. Klp. Gading, Kota Jkt Utara, Daerah Khusus Ibukota Jakarta, Indonesia Kec. Klp. Gading, Kota Jkt Utara, Daerah Khusus Ibukota Jakarta, Indonesia Swimming Pool Area  76953
Yoga Irawan Project Arthagading Kec. Klp. Gading, Kota Jkt Utara, Daerah Khusus Ibukota Jakarta, Indonesia Kec. Klp. Gading, Kota Jkt Utara, Daerah Khusus Ibukota Jakarta, Indonesia Guest Bedroom  76957
Yoga Irawan Project Arthagading Kec. Klp. Gading, Kota Jkt Utara, Daerah Khusus Ibukota Jakarta, Indonesia Kec. Klp. Gading, Kota Jkt Utara, Daerah Khusus Ibukota Jakarta, Indonesia Master Bedroom  76958
Yoga Irawan Project Arthagading Kec. Klp. Gading, Kota Jkt Utara, Daerah Khusus Ibukota Jakarta, Indonesia Kec. Klp. Gading, Kota Jkt Utara, Daerah Khusus Ibukota Jakarta, Indonesia Master Bedroom  76959
Yoga Irawan Project Arthagading Kec. Klp. Gading, Kota Jkt Utara, Daerah Khusus Ibukota Jakarta, Indonesia Kec. Klp. Gading, Kota Jkt Utara, Daerah Khusus Ibukota Jakarta, Indonesia W.i.c Master Bedroom  76960
Yoga Irawan Project Arthagading Kec. Klp. Gading, Kota Jkt Utara, Daerah Khusus Ibukota Jakarta, Indonesia Kec. Klp. Gading, Kota Jkt Utara, Daerah Khusus Ibukota Jakarta, Indonesia Master Bathroom  76961
Yoga Irawan Project Arthagading Kec. Klp. Gading, Kota Jkt Utara, Daerah Khusus Ibukota Jakarta, Indonesia Kec. Klp. Gading, Kota Jkt Utara, Daerah Khusus Ibukota Jakarta, Indonesia Subject-Architecture-Project-Arthagading  76964

Foto Inspirasi Desain

MinimalisRumahRumah Minimalis